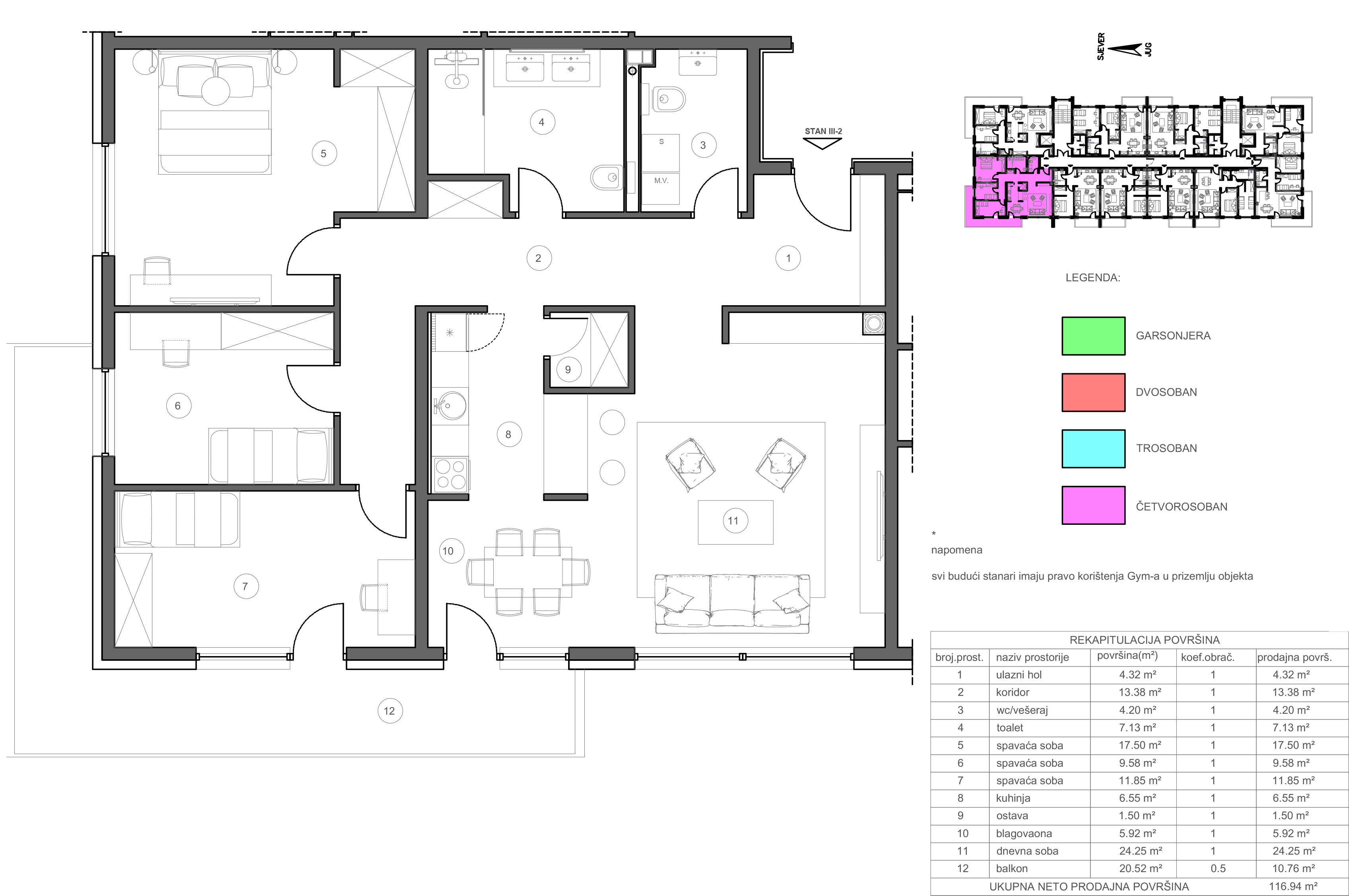
Četverosoban
116,94m2
Drugi kat

116,94m2
Drugi kat

Adriale Living je mlada, ambiciozna investicijska tvrtka koja se specijalizirala za dinamički rastući sektor nekretnina širom Bosne i Hercegovine. Zajednički sa sestrinskom tvrtkom i strateškim udjelima tvrtke u profesionalnim... Više
Obala bb, Kreševo
Bosna i Hercegovina
+387 30 335 851
adriale@adrialeliving.com